HOSPITAL DE JOVE CMA. PLAN DIRECTOR. REFORMA Y AMPLIACIÓN
ARQUITECTO: Bernardo García Tapia
EQUIPO DE DISEÑO: Bernardo García Tapia + Ignacio García Picabea, arquitectos y Arsenio Castro Rodríguez, aparejador
FECHA: encargo privado 2019
LOCALIZACIÓN: Gijón. Principado de Asturias.
CLIENTE: Fundación Hospital de Jove
En el momento de la actuación, el Hospital ha finalizado el proceso de obras del Plan Director de Reforma y Ampliación, habiéndose desarrollado y puesto ya en funcionamiento la unidad de hospitalización de Psiquiatría, el servicio de Consultas Externas y el servicio de Rehabilitación, el servicio de Farmacia, el servicio de vestuarios y el servicio de Urgencias, así como las instalaciones necesarias de producción y servicio.
Descripción general del proyecto y de los espacios exteriores adscritos
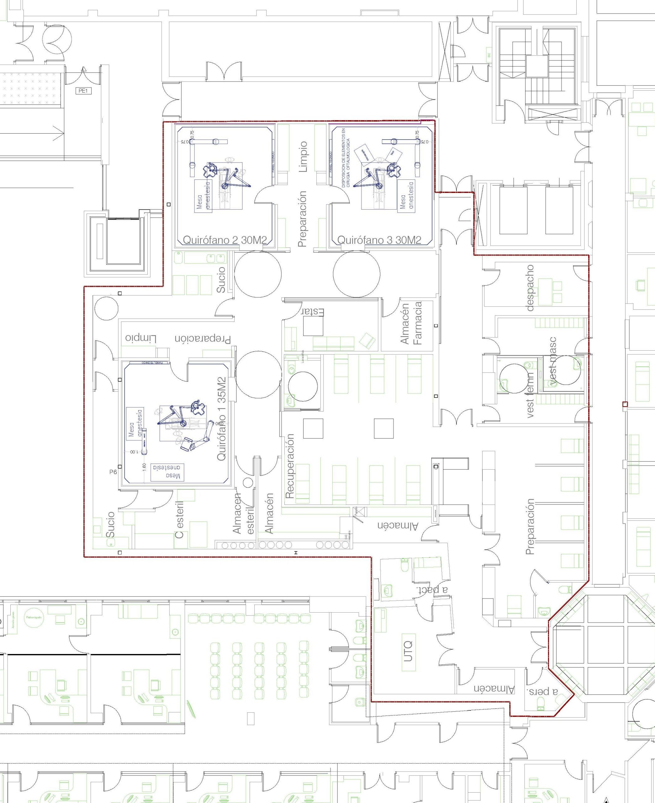
SERVICIO DE CIRUGIA MAYOR AMBULATORIA con 3 quirófanos, áreas auxiliares zonas de preparación, anestesia, recuperación y reanimación; y apoyos a la enfermería y a los pacientes correspondientes.
Para implantar el nuevo servicio se reforma el área disponible actualmente en una terraza de plana baja ampliando la edificación sobre la cubierta del volumen de la cocina. De tal forma que la actividad de las zonas adyacentes en la misma planta y plantas inferiores no se interrumpe.
Se proyecta un volumen de una sola altura, si bien en su asentamiento ocupa una zona adyacente al volumen de la cocina en el nivel inferior de planta semisótano y ocupa parcialmente el patio lateral. Este espacio se destina a la ubicación de las instalaciones de las nuevas construcciones.
superficie de actuación: 732,00m2 _PEM: 930.730,71€